Каталог » Высоковольтная аппаратура » Разъединители высоковольтные » РВ, РВ, РВФ, РВЗ, РВФЗ, ЗР, ПР » Разъединитель РВ
Разъединитель РВ
Устройство и принцип действия
Трехполюсные разъединители серии РВ представляют собой три токопровода, установленных на одной раме с основным (общим) валом, тягами и приводным рычагом. Токопровод состоит из двух неподвижных контактов и соединяющего их поворотного ножа. Включение и отключение разъединителя производится за счет вращения вала посредством привода ПР-10.
Ножи удерживаются во включенном и отключенном положении за счет фиксации привода ПР-10.
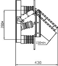
Общий вид и габаритные размеры разъединителей серии РВ представлены в приложении В на рисунках В1 и В2.
Варианты исполнения Разъединителей РВ. Габаритный чертеж
В.1. Разъединитель РВ-10/630 УХЛ2 на 630А


В.2. Разъединитель РВ-10/1000 УХЛ2 на 1000А

